Giới thiệu Din 2633 flange dimensions
Trong thế giới công nghiệp hiện đại, việc lựa chọn và sử dụng các tiêu chuẩn kỹ thuật là vô cùng quan trọng. Một trong những tiêu chuẩn được sử dụng rộng rãi trong ngành công nghiệp là tiêu chuẩn mặt bích DIN 2633. Tiêu chuẩn này không chỉ đảm bảo chất lượng và độ bền của sản phẩm mà còn giúp tiết kiệm chi phí và thời gian trong quá trình sản xuất và lắp đặt. Bài viết này sẽ cung cấp một cái nhìn tổng quan về Din 2633 flange dimensions, từ lịch sử phát triển, đặc điểm, phân loại, ứng dụng cho đến lợi ích của việc sử dụng tiêu chuẩn này. Hãy cùng tìm hiểu những thông tin hữu ích và chi tiết về tiêu chuẩn mặt bích DIN 2633.
Lịch sử ra đời và phát triển Din 2633 flange dimensions
Tiêu chuẩn DIN 2633 đã có một lịch sử phát triển lâu dài và đáng chú ý trong lĩnh vực công nghiệp. Được phát triển bởi Viện Tiêu Chuẩn Đức (Deutsches Institut für Normung - DIN), tiêu chuẩn này đã trở thành một phần quan trọng trong việc thiết kế và sản xuất các loại mặt bích. Từ khi ra đời, DIN 2633 đã trải qua nhiều lần cải tiến để đáp ứng nhu cầu ngày càng cao của ngành công nghiệp. Những cải tiến này không chỉ nhằm nâng cao chất lượng sản phẩm mà còn giúp tối ưu hóa quy trình sản xuất và giảm thiểu chi phí. Sự phát triển của tiêu chuẩn DIN 2633 là minh chứng cho sự tiến bộ không ngừng của ngành công nghiệp kỹ thuật.

Đặc điểm của tiêu chuẩn DIN 2633
DIN 2633 nổi bật với những đặc điểm kỹ thuật đáng chú ý. Tiêu chuẩn này quy định các kích thước cụ thể cho mặt bích, bao gồm đường kính ngoài, đường kính trong, và độ dày. Điều này giúp đảm bảo rằng các mặt bích sản xuất theo tiêu chuẩn này có thể dễ dàng lắp ráp và thay thế trong các hệ thống công nghiệp. Ngoài ra, DIN 2633 còn đưa ra các yêu cầu về vật liệu sử dụng, đảm bảo rằng mặt bích có khả năng chịu lực và chống ăn mòn tốt. Những đặc điểm này không chỉ giúp nâng cao tuổi thọ của sản phẩm mà còn đảm bảo an toàn cho các hệ thống công nghiệp.
Phân loại mặt bích theo tiêu chuẩn DIN 2633
Các loại mặt bích DIN 2633 phổ biến
Mặt bích DIN 2633 được phân loại thành nhiều loại khác nhau dựa trên kích thước và ứng dụng cụ thể. Một số loại phổ biến bao gồm mặt bích hàn cổ, mặt bích hàn trượt, và mặt bích ren. Mỗi loại mặt bích có những ưu điểm và ứng dụng riêng, phù hợp với từng loại hệ thống công nghiệp. Ví dụ, mặt bích hàn cổ thường được sử dụng trong các hệ thống có áp suất cao, trong khi mặt bích hàn trượt thích hợp cho các hệ thống có yêu cầu linh hoạt trong lắp đặt. Sự đa dạng này giúp các kỹ sư và nhà sản xuất có nhiều lựa chọn hơn trong việc thiết kế và lắp đặt các hệ thống công nghiệp.
Ứng dụng của mặt bích DIN 2633 trong công nghiệp
Mặt bích DIN 2633 được ứng dụng rộng rãi trong nhiều lĩnh vực công nghiệp như dầu khí, hóa chất, điện, và nước. Nhờ vào những đặc điểm kỹ thuật vượt trội, mặt bích DIN 2633 đảm bảo an toàn và hiệu quả trong việc kết nối các đường ống và thiết bị. Trong ngành dầu khí, mặt bích này được sử dụng để kết nối các đường ống dẫn dầu và khí, đảm bảo sự lưu thông ổn định và an toàn. Trong ngành hóa chất, mặt bích DIN 2633 giúp ngăn ngừa rò rỉ và đảm bảo sự an toàn của các hệ thống chứa hóa chất. Ứng dụng rộng rãi này chứng tỏ tầm quan trọng của tiêu chuẩn DIN 2633 trong ngành công nghiệp hiện đại.
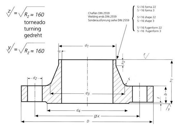
Chi tiết kích thước mặt bích DIN 2633
Đường kính và độ dày tiêu chuẩn của mặt bích
Kích thước của mặt bích DIN 2633 được quy định rất cụ thể, bao gồm cả đường kính và độ dày. Đường kính mặt bích thường được đo từ mép ngoài của vòng tròn này đến mép ngoài của vòng tròn kia. Độ dày của mặt bích phụ thuộc vào áp suất mà nó phải chịu đựng. Các thông số này được thiết kế để đảm bảo rằng mặt bích có thể chịu được áp suất và nhiệt độ cao trong các hệ thống công nghiệp. Việc tuân thủ các kích thước tiêu chuẩn này là rất quan trọng để đảm bảo sự an toàn và hiệu quả của các hệ thống sử dụng mặt bích DIN 2633.
Bảng kích thước chi tiết cho các loại mặt bích DIN 2633
Bảng kích thước chi tiết cho các loại mặt bích DIN 2633 cung cấp thông tin cụ thể về các thông số kỹ thuật như đường kính, độ dày, và số lượng lỗ bu lông. Bảng này là tài liệu tham khảo quan trọng cho các kỹ sư và nhà sản xuất khi thiết kế và lắp đặt các hệ thống công nghiệp. Việc sử dụng bảng kích thước chi tiết giúp đảm bảo rằng các mặt bích được sản xuất và lắp đặt đúng theo tiêu chuẩn, từ đó nâng cao độ an toàn và hiệu quả của các hệ thống. Các thông số trong bảng kích thước chi tiết cũng giúp dễ dàng so sánh và lựa chọn mặt bích phù hợp với từng ứng dụng cụ thể.
So sánh kích thước với các tiêu chuẩn khác
Khi so sánh kích thước mặt bích DIN 2633 với các tiêu chuẩn khác như ANSI, JIS, hay BS, có thể thấy rằng mỗi tiêu chuẩn có những quy định riêng về kích thước và độ dày. Tuy nhiên, tiêu chuẩn DIN 2633 nổi bật với sự chính xác và khả năng chịu lực tốt, làm cho nó trở thành lựa chọn ưu tiên trong nhiều ứng dụng công nghiệp. Sự khác biệt về kích thước giữa các tiêu chuẩn có thể ảnh hưởng đến khả năng lắp ráp và tương thích của các hệ thống. Do đó, việc lựa chọn tiêu chuẩn phù hợp là rất quan trọng để đảm bảo hiệu quả và an toàn của hệ thống.
Lợi ích của việc sử dụng mặt bích DIN 2633
Sử dụng mặt bích DIN 2633 mang lại nhiều lợi ích cho các hệ thống công nghiệp. Trước hết, tiêu chuẩn này đảm bảo chất lượng và độ bền của sản phẩm, giúp giảm thiểu chi phí bảo trì và sửa chữa. Thứ hai, mặt bích DIN 2633 có khả năng chịu lực và chống ăn mòn tốt, đảm bảo an toàn cho các hệ thống hoạt động trong điều kiện khắc nghiệt. Ngoài ra, việc sử dụng tiêu chuẩn này còn giúp tiết kiệm thời gian trong quá trình lắp đặt và thay thế, nhờ vào sự đồng nhất và dễ dàng trong việc lắp ráp các bộ phận. Tất cả những lợi ích này làm cho mặt bích DIN 2633 trở thành lựa chọn hàng đầu cho nhiều ứng dụng công nghiệp.
Hãy liên hệ với chúng tôi để tìm hiểu thêm về Din 2633 flange dimensions phù hợp với nhu cầu của bạn. Chúng tôi cam kết cung cấp sản phẩm chất lượng cao và dịch vụ tốt nhất để đáp ứng mọi yêu cầu của bạn trong lĩnh vực ống inox và van inox.

Kết luận
Trải qua một hành trình khám phá chi tiết về tiêu chuẩn DIN 2633, chúng ta có thể thấy rõ ràng rằng việc sử dụng tiêu chuẩn này mang lại nhiều lợi ích vượt trội cho ngành công nghiệp. Từ khả năng chịu lực, chống ăn mòn, cho đến sự tiện lợi trong lắp đặt và bảo trì, mặt bích DIN 2633 thực sự là một giải pháp tối ưu cho các hệ thống công nghiệp hiện đại. Việc tuân thủ tiêu chuẩn này không chỉ đảm bảo chất lượng và độ bền của sản phẩm mà còn góp phần nâng cao hiệu quả và an toàn của các quy trình sản xuất. Đối với các kỹ sư và nhà sản xuất, việc lựa chọn tiêu chuẩn mặt bích phù hợp là một yếu tố quan trọng để đảm bảo sự thành công và phát triển bền vững trong ngành công nghiệp. Hãy tận dụng những thông tin và kiến thức từ bài viết này để đưa ra những quyết định sáng suốt và hiệu quả cho doanh nghiệp của bạn.
Rất mong các bạn quan tâm và theo dõi http://thegioivancongnghiep.com/ để cập nhật thông tin mới nhất về Din 2633 flange dimensions