Trong thế giới công nghiệp, các tiêu chuẩn và quy chuẩn đóng vai trò quan trọng trong việc đảm bảo chất lượng và an toàn của sản phẩm. Một trong những tiêu chuẩn được áp dụng rộng rãi là tiêu chuẩn Flange EN 1092-2. Bài viết này sẽ mang đến cho bạn cái nhìn sâu sắc về Flange EN 1092-2, từ định nghĩa cơ bản đến các loại flange, ứng dụng trong ngành công nghiệp, và các vấn đề thường gặp. Hãy cùng tìm hiểu để hiểu rõ hơn về tầm quan trọng và lợi ích của việc sử dụng Flange EN 1092-2 trong các hệ thống kỹ thuật.
Giới thiệu về Flange EN 1092-2
Định nghĩa và khái niệm cơ bản flange en 1092 2
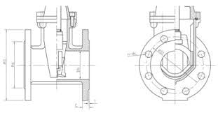
Flange EN 1092-2 là một phần của tiêu chuẩn châu Âu EN 1092, quy định các yêu cầu kỹ thuật cho mặt bích (flange) bằng gang. Tiêu chuẩn này được sử dụng rộng rãi trong các hệ thống đường ống, đặc biệt là trong các ngành công nghiệp dầu khí, hóa chất và xử lý nước. Flange là một thành phần quan trọng trong hệ thống ống dẫn, cho phép kết nối các ống với nhau hoặc với các thiết bị khác. Với tiêu chuẩn EN 1092-2, các mặt bích được đảm bảo về độ bền, khả năng chịu áp suất và tính tương thích với các tiêu chuẩn quốc tế khác.
Một điểm đặc biệt của Flange EN 1092-2 là khả năng chịu áp lực và nhiệt độ cao, điều này rất quan trọng trong các ứng dụng công nghiệp nặng. Flange theo tiêu chuẩn này thường được chế tạo từ vật liệu gang cầu, mang lại độ bền và khả năng chống ăn mòn tốt. Các thông số kỹ thuật của Flange EN 1092-2 bao gồm kích thước, áp suất danh định (PN) và loại bề mặt kết nối.

Các loại Flange theo tiêu chuẩn EN 1092-2
Các loại Flange phổ biến
Flange EN 1092-2 có nhiều loại khác nhau, tùy thuộc vào ứng dụng cụ thể. Một số loại phổ biến bao gồm:
- Flange hàn cổ (Weld Neck Flange): Loại này có cổ dài, được hàn trực tiếp vào ống, giúp giảm thiểu áp lực và tăng cường độ bền của kết nối.
- Flange trượt (Slip-On Flange): Dễ lắp đặt và thường được sử dụng trong các hệ thống áp suất thấp.
- Flange ren (Threaded Flange): Không cần hàn, thích hợp cho các ứng dụng áp suất thấp và nhiệt độ thấp.
- Flange mù (Blind Flange): Được sử dụng để bịt kín các đầu ống hoặc các lỗ mở trên thiết bị.
Mỗi loại flange có ưu điểm và nhược điểm riêng, và việc lựa chọn loại flange phù hợp phụ thuộc vào yêu cầu kỹ thuật cụ thể của từng dự án.
So sánh với các tiêu chuẩn khác
Flange EN 1092-2 thường được so sánh với các tiêu chuẩn quốc tế khác như ANSI/ASME B16.5, DIN, và JIS. Mỗi tiêu chuẩn có quy định riêng về kích thước, vật liệu, và áp suất. So với ANSI/ASME B16.5, Flange EN 1092-2 có sự khác biệt chủ yếu về kích thước và áp suất danh định. Trong khi ANSI/ASME B16.5 chủ yếu được sử dụng tại Mỹ, EN 1092-2 phổ biến hơn ở châu Âu và các quốc gia khác tuân thủ tiêu chuẩn châu Âu.
Điểm mạnh của Flange EN 1092-2 là tính linh hoạt trong thiết kế và khả năng tương thích với nhiều hệ thống khác nhau. Điều này giúp các kỹ sư dễ dàng tích hợp và thay thế trong các hệ thống hiện có mà không cần điều chỉnh quá nhiều.
Ứng dụng của Flange EN 1092-2
Ngành công nghiệp sử dụng
Flange EN 1092-2 được sử dụng rộng rãi trong nhiều ngành công nghiệp khác nhau nhờ vào tính đa dụng và độ bền cao. Một số ngành công nghiệp chính sử dụng loại flange này bao gồm:
- Ngành dầu khí: Flange EN 1092-2 được sử dụng trong các hệ thống đường ống dẫn dầu và khí, nơi yêu cầu độ bền và khả năng chịu áp lực cao.
- Ngành hóa chất: Với khả năng chống ăn mòn tốt, flange này phù hợp cho các ứng dụng trong ngành hóa chất, nơi có sự hiện diện của các chất ăn mòn.
- Xử lý nước và nước thải: Flange EN 1092-2 được áp dụng trong các hệ thống xử lý nước, đảm bảo tính an toàn và hiệu quả trong vận hành.
Flange EN 1092-2 không chỉ giới hạn trong các ngành công nghiệp nặng mà còn được sử dụng trong các ứng dụng nhỏ hơn như hệ thống sưởi ấm, thông gió và điều hòa không khí (HVAC).
Lợi ích khi sử dụng Flange đạt tiêu chuẩn
Sử dụng Flange EN 1092-2 mang lại nhiều lợi ích cho các doanh nghiệp và kỹ sư. Đầu tiên, tiêu chuẩn này đảm bảo chất lượng và độ an toàn của sản phẩm, giúp giảm thiểu nguy cơ sự cố trong quá trình vận hành. Thứ hai, việc tuân thủ tiêu chuẩn EN 1092-2 giúp tăng cường sự tin cậy của hệ thống, đảm bảo khả năng hoạt động ổn định và hiệu quả. Cuối cùng, flange đạt tiêu chuẩn giúp giảm chi phí bảo trì và sửa chữa nhờ vào độ bền và tuổi thọ cao.
Việc lựa chọn và sử dụng flange đúng tiêu chuẩn là một phần quan trọng trong quy trình thiết kế và triển khai các hệ thống kỹ thuật. Điều này không chỉ giúp tối ưu hóa hiệu suất mà còn đảm bảo tuân thủ các quy định và yêu cầu pháp lý.
Những vấn đề thường gặp và giải pháp
Các lỗi phổ biến
Mặc dù Flange EN 1092-2 được thiết kế để đảm bảo chất lượng và độ bền, nhưng vẫn có thể xảy ra một số vấn đề trong quá trình sử dụng. Một số lỗi phổ biến bao gồm:
- Rò rỉ: Có thể xảy ra do lắp đặt không đúng cách hoặc do sử dụng gasket không phù hợp.
- Ăn mòn: Xảy ra khi flange tiếp xúc với các chất ăn mòn mà không có biện pháp bảo vệ thích hợp.
- Biến dạng: Có thể do áp suất quá cao hoặc nhiệt độ không phù hợp với khả năng chịu đựng của flange.
Hiểu rõ các lỗi phổ biến này giúp các kỹ sư và nhà quản lý có thể đưa ra các biện pháp phòng ngừa và khắc phục kịp thời.
Biện pháp khắc phục
Để khắc phục các vấn đề liên quan đến Flange EN 1092-2, cần thực hiện một số biện pháp sau:
- Lắp đặt đúng cách: Đảm bảo rằng flange được lắp đặt theo đúng hướng dẫn kỹ thuật và sử dụng các công cụ phù hợp.
- Chọn vật liệu phù hợp: Sử dụng vật liệu có khả năng chống ăn mòn cao trong các môi trường khắc nghiệt.
- Kiểm tra định kỳ: Thực hiện kiểm tra và bảo dưỡng định kỳ để phát hiện sớm các vấn đề và xử lý kịp thời.
Việc áp dụng các biện pháp này không chỉ giúp duy trì hiệu suất của hệ thống mà còn kéo dài tuổi thọ của các thành phần, giảm thiểu chi phí bảo trì và sửa chữa.
Hãy liên hệ với chúng tôi để tìm hiểu thêm về Flange en 1092 2 phù hợp với nhu cầu của bạn. Chúng tôi cam kết cung cấp sản phẩm chất lượng cao và dịch vụ tốt nhất để đáp ứng mọi yêu cầu của bạn trong lĩnh vực ống inox và van inox.

Kết luận
Flange EN 1092-2 là một tiêu chuẩn quan trọng trong ngành công nghiệp, mang lại nhiều lợi ích về chất lượng và độ bền cho các hệ thống kỹ thuật. Bài viết này đã cung cấp cái nhìn tổng quan về các loại flange, ứng dụng và các vấn đề thường gặp khi sử dụng Flange EN 1092-2. Việc hiểu rõ và tuân thủ tiêu chuẩn này không chỉ giúp đảm bảo an toàn và hiệu suất mà còn tối ưu hóa chi phí và tăng cường sự tin cậy của hệ thống. Đối với các kỹ sư và nhà quản lý, việc lựa chọn và sử dụng flange đúng tiêu chuẩn là yếu tố then chốt trong việc thiết kế và triển khai các dự án công nghiệp.
Hy vọng rằng thông qua bài viết này, bạn đã có được cái nhìn sâu sắc và toàn diện về Flange EN 1092-2, từ đó có thể áp dụng hiệu quả trong công việc và dự án của mình.
Rất mong các bạn quan tâm và theo dõi http://thegioivancongnghiep.com/ để cập nhật thông tin mới nhất về Flange en 1092 2