TCVN 7698-3:2007
ỐNG THÉP VÀ PHỤ TÙNG ĐƯỜNG ỐNG - KÝ HIỆU SỬ DỤNG TRONG PHẦN ĐẶC TÍNH KỸ THUẬT - PHẦN 3 - ĐẦU NỐI ỐNG CÓ MẶT CẮT NGANG TRÒN
Steel tubes and fittings - Symbols for use in specifications - Part 3 - Tubular fittings with circular cross-section
- Phạm vi áp dụng
Tiêu chuẩn này quy định các ký hiệu sử dụng trong phần đặc tính kỹ thuật dùng cho các đầu nối ống và các phụ tùng liên quan, với mục đích tiêu chuẩn hóa và thuận tiện trong sử dụng.
- Ký hiệu cơ bản
D - đường kính ngoài danh nghĩa
P - áp suất
T - chiều dày danh nghĩa
Mu - đơn vị khối lượng
- Ký hiệu về điều kiện làm việc
DN - kích thước danh nghĩa
PN - áp suất danh nghĩa
PS - áp suất làm việc
TS - nhiệt độ làm việc
- Ký hiệu về dung sai (xem Hình 1)
Theo TCVN 5894:1995 (ISO 5252:1977), Ống thép - Hệ thống dung sai và các ký hiệu sau:
Q - độ lệch góc của hai mặt mút
P - độ không vuông góc của mặt phẳng đối xứng
U - độ lệch giữa các mặt mút
- Ký hiệu kích thước
5.1. Đầu nối cong (xem Hình 2)
CHÚ THÍCH: Đầu nối cong thường được ký hiệu bằng đường kính uốn cong nD của chúng (ví dụ: 3D, 5D)
- Giá trị bằng số của bán kính uốn cong được ký hiệu bằng chữ F.
D - đường kính ngoài
d - đường kính trong
T - chiều dày
F - giá trị của bán kính uốn cong
L - chiều dài của đầu mút thẳng
B - kích thước từ lưng tới mặt mút hoặc tới chỗ bắt đầu của đầu thẳng đối với đầu nối cong 180o
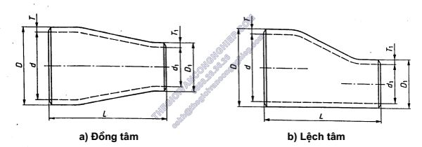
5.2. Đầu nối chuyển bậc (xem Hình 3)
D - đường kính ngoài lớn
d - đường kính trong lớn
T - chiều dày liền kề đường kính lớn
D1 - đường kính ngoài nhỏ
d1 - đường kính trong nhỏ
T1 - chiều dày liền kề đường kính nhỏ
L - chiều dài toàn bộ đầu nối
5.3. Đầu nối ba ngả (xem Hình 4)
D - đường kính ngoài lớn
d - đường kính trong lớn
T - chiều dày liền kề đường kính lớn
D1 - đường kính ngoài nhỏ
d1 - đường kính trong nhỏ
T1 - chiều dày liền kề đường kính nhỏ
F - kích thước từ đường tâm tới mặt mút có đường kính d của đầu nối ba ngả có ba đầu bằng nhau và một đầu chuyển bậc
H - kích thước từ đường tâm tới mặt mút có đường kính d1 của đầu nối ba ngả có một đầu chuyển bậc.
5.4. Nắp bịt ống (xem Hình 5)
D - đường kính ngoài
T - chiều dày
K - chiều cao tổng của nắp bịt ống

Hình 1 - Dung sai độ thẳng hàng

Hình 2 - Đầu nối cong

Hình 3 - Đầu nối chuyển bậc đồng tâm và lệch tâm

Hình 4 - Đầu nối ba ngả chuyển bậc và không chuyển bậc

Hình 5 - Nắp bịt ống
Phụ lục
(Tham khảo)
Thư mục tài liệu tham khảo
(1) ISO 3419:1981, Non-alloy and alloy steel butt - welding fittings (Đầu nối ống hàn bằng thép hợp kim và phi hợp kim).
(2) ISO 5251:1981, Stainless steel butt-welding fittings (Đầu nối ống hàn bằng thép không gỉ)